The Kings Lantern, Exeter

Overview

Summary

This former 18th-century pub was once known for its freshly prepared, locally sourced food and ever-changing selection of beers from independent breweries.

Details

Title
Service
Drone & Aerial Inspections, Measured Building Surveys, Topographical Survey
Method
Drone, Laser Scanner, Total Station
Deliverables
2D Topographical Plan, Measured Building Plans

Project gallery

The Kings Lantern had a long-standing reputation for quality and charm, recognised in national pub guides. The site is now closed and undergoing redevelopment.

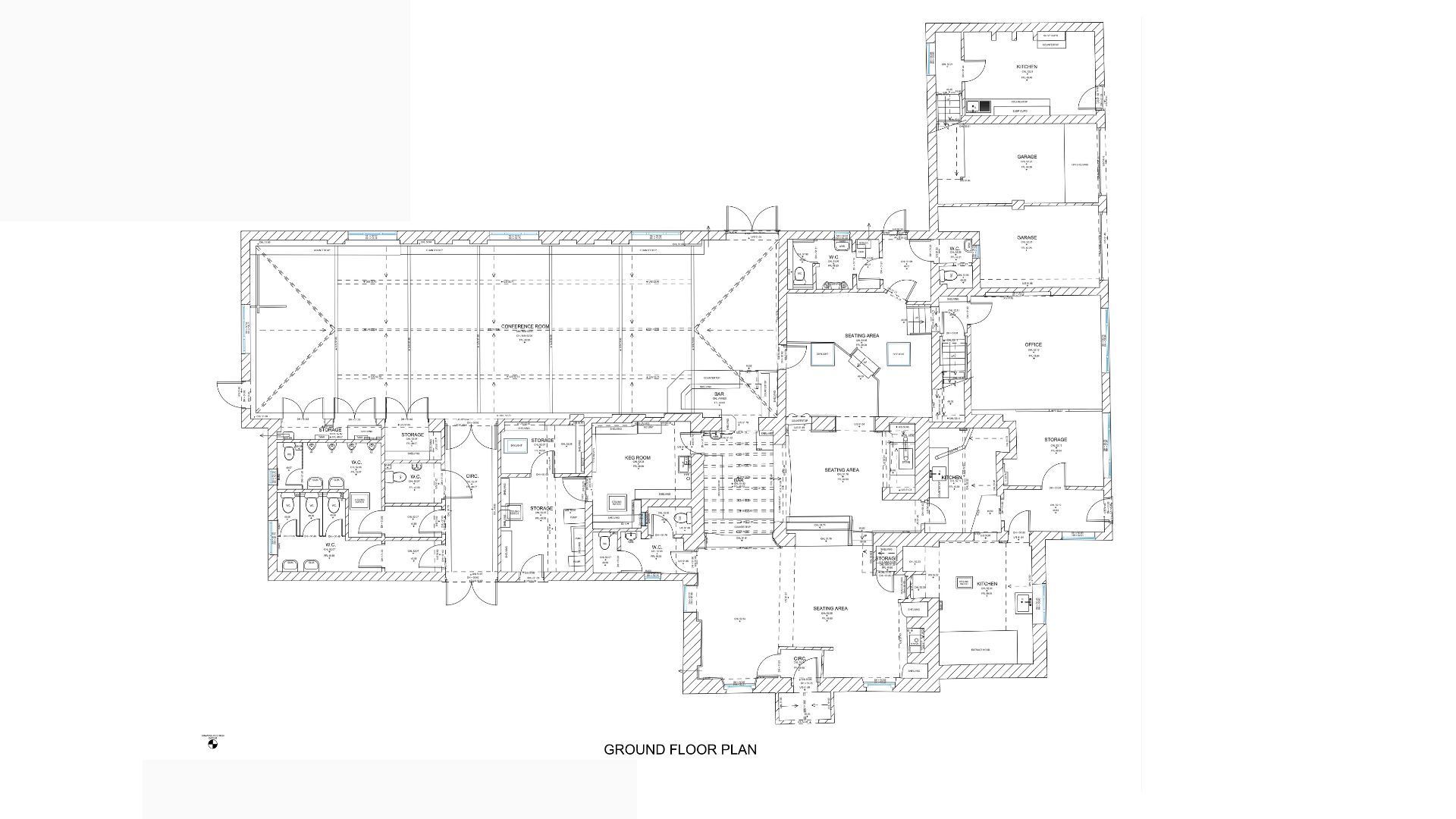
Surveybase were appointed to deliver a comprehensive survey for this pub. The project included a topographical and measured building survey, producing a topographical plan, as well as floor and elevation plans.

Surveying The Kings Lantern presented unique challenges, but to overcome these, Surveybase employed advanced surveying technology and careful planning to capture precise data while minimising disruption.

This project underscores Surveybase’s commitment to delivering high-quality, cutting-edge surveying services. By providing our surveying services, we ensure clients receive a complete, coordinated and accurate dataset. This approach streamlines the design and planning process, reduces risk, and supports more efficient project delivery.

The Kings Lantern joins prestigious sites within our portfolio, and each project reflects Surveybase’s expertise in delivering precise surveys for complex buildings.

We combine almost 30 years of business with the latest surveying technology to deliver accurate, efficient, and professional results across the UK. Whether you’re planning a residential development or a large-scale commercial project, our expert team is here to help. To get started, visit our Quote Portal for a fast, tailored quote, or email: quote@surveybase.co.uk.

Related services

Unlock the benefits of integrated surveying services with Surveybase. Our comprehensive solutions combine a range of services to deliver efficient, accurate, and cost-effective results, supporting every phase of your project with precision and reliability.

Similar projects

Each project highlights our dedication to accuracy, innovation, and delivering integrated surveying services. Discover how we’ve helped clients achieve successful outcomes with precise, high-quality data.

The Gilded Fox Pub, Nottingham

The Former King’s Head, London