The Gilded Fox Pub is a Grade II listed former pub and hotel located in Nottingham. Recognised by Historic England for its architectural and historic interest, The Gilded Fox Pub stands as a notable example of early 20th-century roadhouse design.
Constructed in 1931 and opened in 1932, the three-storey, half-timbered structure once served as a vibrant social hub. Although no longer in use as a public house, the building remains significant despite suffering fire damage in 2016.
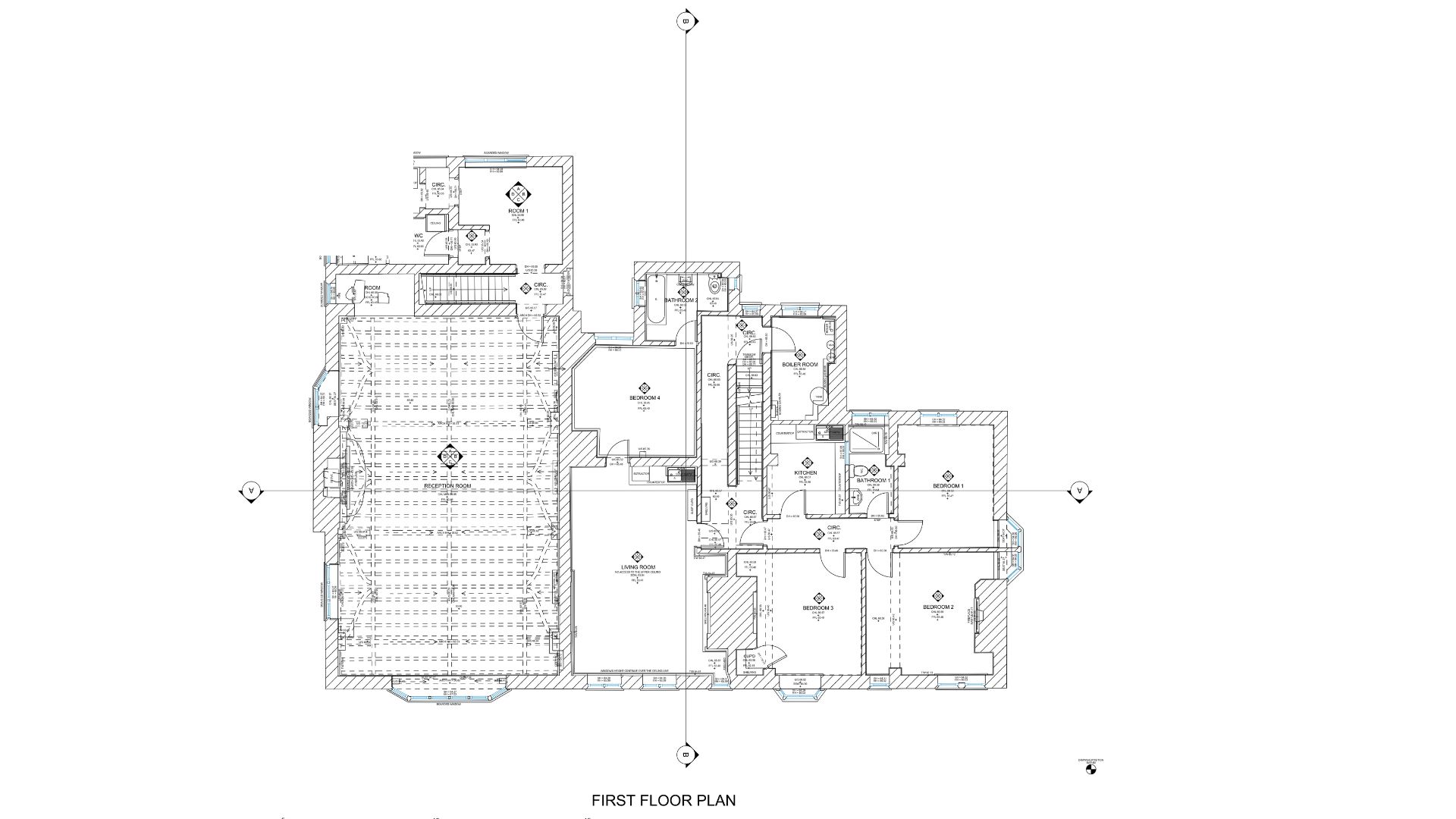
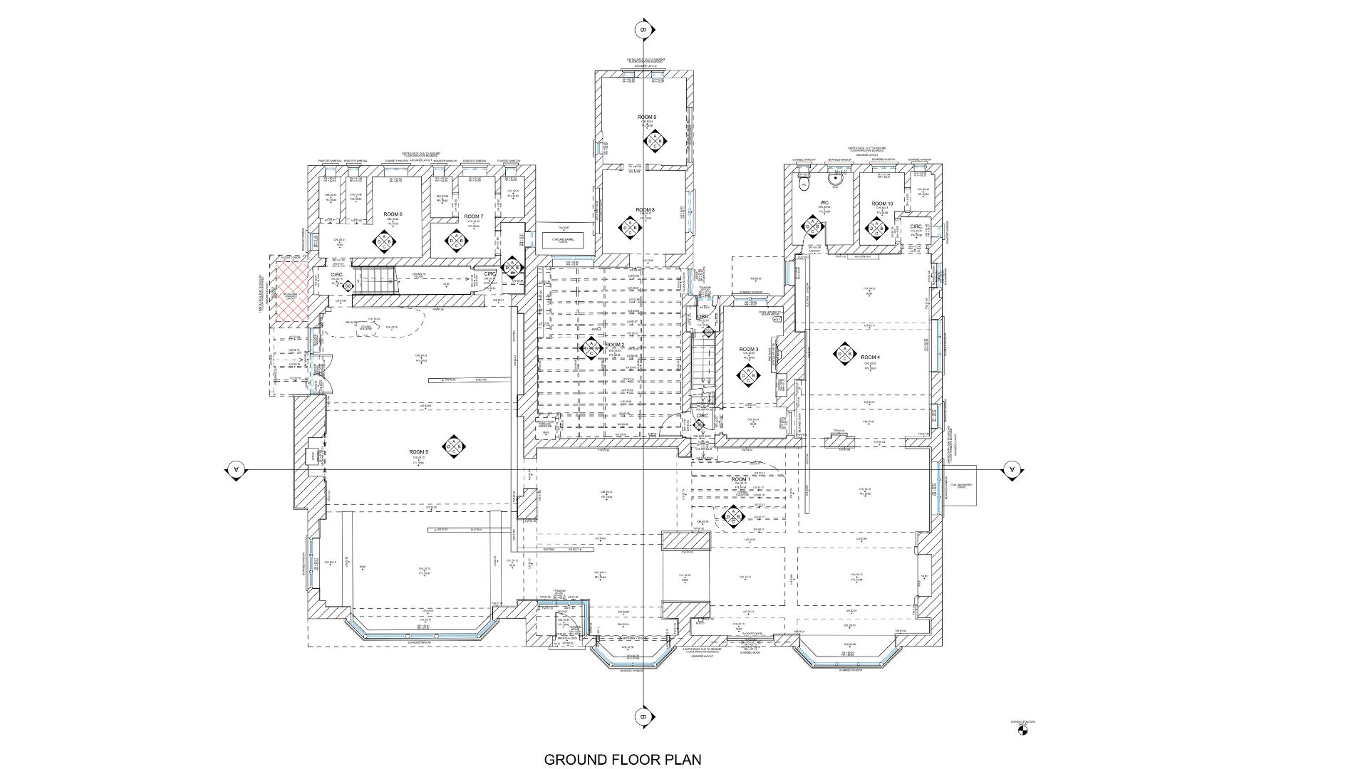
Surveybase was appointed to deliver our integrated surveying service, including a 2D Topographical, Utility, and Measured Building Survey, as well as a 3D BIM Survey. This provided the client with 2D Topographical and Utility plans, floor and roof plans, elevations and an accurate 3D model delivered to LOD3 internals and LOD4 externals.
Surveying the The Gilded Fox Pub presented some challenges, particularly due to fire damage and structural instability in certain areas of the building. To overcome these obstacles, Surveybase used advanced surveying technology to ensure precise data collection with minimal disruption.
This project underscores Surveybase’s commitment to delivering high-quality, cutting-edge surveying services. By providing our surveying services, we ensure clients receive a complete, coordinated and accurate dataset. This approach streamlines the design and planning process, reduces risk, and supports more efficient project delivery.
The The Gilded Fox Pub is part of a growing portfolio of heritage and hospitality projects that demonstrate Surveybase’s expertise in delivering accurate, high-quality surveys for complex and characterful buildings.
We combine almost 30 years of business with the latest surveying technology to deliver accurate, efficient, and professional results across the UK. Whether you’re planning a residential development or a large-scale commercial project, our expert team is here to help. To get started, visit our Quote Portal for a fast, tailored quote, or email: quote@surveybase.co.uk.
Since 1997, Surveybase has been a trusted leader in Topographical Surveys, offering nationwide coverage and delivering accurate, high-quality 2D and 3D survey data. Our proven expertise guarantees precise terrain mapping for design, planning, and compliance, ensuring total confidence in your project from the outset.
Since 1997, Surveybase has been a trusted leader in Measured Building Surveys. Providing nationwide coverage, we deliver precise and dependable 2D and 3D outputs, ensuring complete confidence in your project from day one.
Surveybase is a recognised leader in Building Information Modelling (BIM) consultancy, specialising in high-precision 3D BIM Surveys. With our nationwide service, we deliver accurate and reliable modelling data, ensuring complete confidence in your project from the outset.
Surveybase is a recognised leader in Underground Utility Surveying. With our nationwide service, we deliver accurate and reliable underground utility mapping solutions, helping clients mitigate risks, enhance safety, and ensure compliance, providing confidence in your project from the outset.