Regional Shopping Centre

Overview

Summary

This busy shopping hub features a mix of high-street brands, independent retailers, and essential services.

Details

Title
Service
Drone & Aerial Inspections, Measured Building Surveys, Topographical Survey
Method
Drone, Laser Scanner, Total Station
Deliverables
2D Topographical Plan, Measured Building Plans

Project gallery

This shopping centre features both retail and residential spaces on top, and serves as a convenient destination for everyday shopping, with accessible transport links and a friendly, community-focused atmosphere.

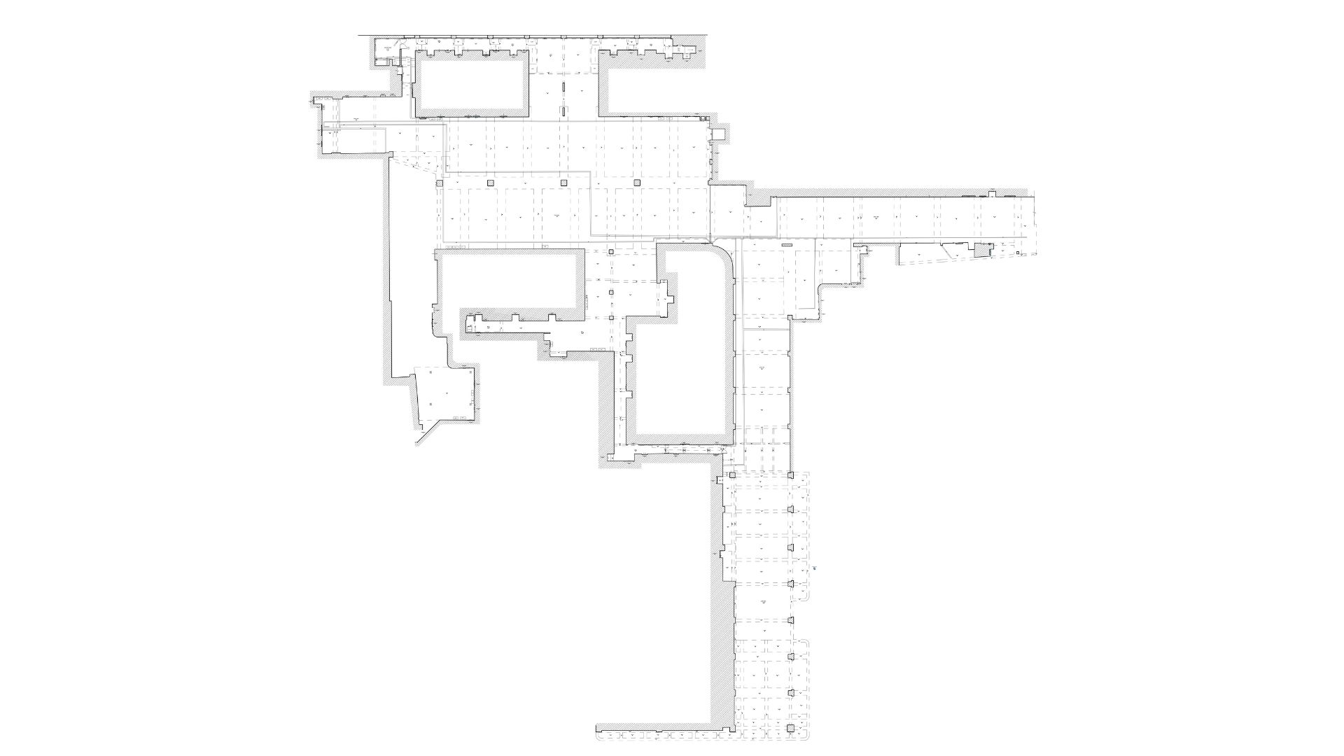
Surveybase were appointed at short notice to deliver a comprehensive survey for this shopping centre. The project included a topographical and measured building survey, producing a topographical plan, as well as floor, roof, and elevation plans.

Surveying this site came with a unique set of challenges, largely due to its size and the presence of residential housing built above the shopping centre. To overcome this, Surveybase utilised advanced surveying technology, including a drone survey and meticulous planning to ensure accurate data collection in a timely manner.

This project underscores Surveybase’s commitment to delivering high-quality, cutting-edge surveying services. By providing our surveying services, we ensure clients receive a complete, coordinated and accurate dataset. This approach streamlines the design and planning process, reduces risk, and supports more efficient project delivery.

This shopping centre joins prestigious sites within our portfolio, and each project reflects Surveybase’s expertise in delivering precise surveys for complex buildings.

We combine almost 30 years of business with the latest surveying technology to deliver accurate, efficient, and professional results across the UK. Whether you’re planning a residential development or a large-scale commercial project, our expert team is here to help. To get started, visit our Quote Portal for a fast, tailored quote, or email: quote@surveybase.co.uk.

Play the video

Related services

Unlock the benefits of integrated surveying services with Surveybase. Our comprehensive solutions combine a range of services to deliver efficient, accurate, and cost-effective results, supporting every phase of your project with precision and reliability.

Similar projects

Each project highlights our dedication to accuracy, innovation, and delivering integrated surveying services. Discover how we’ve helped clients achieve successful outcomes with precise, high-quality data.

The Gilded Fox Pub, Nottingham

High Street Store Redevelopment, London

Centrale Shopping Centre, Croydon