Multi-Site Surveys for Veterinary Practices

Overview

Summary

Spanning locations across the UK, a series of veterinary practices required a range of specialist surveys to support ongoing development and refurbishment projects.

Details

Title
Service
3D Revit BIM Modelling, Measured Building Surveys, Topographical Survey
Method
Laser Scanner, Total Station
Deliverables
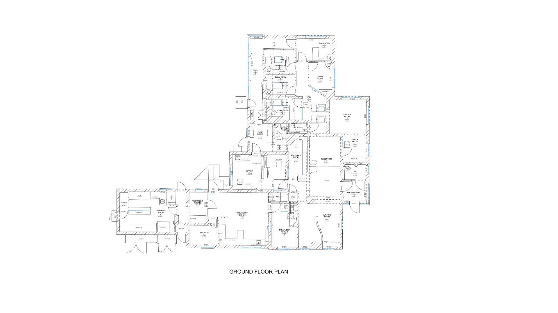
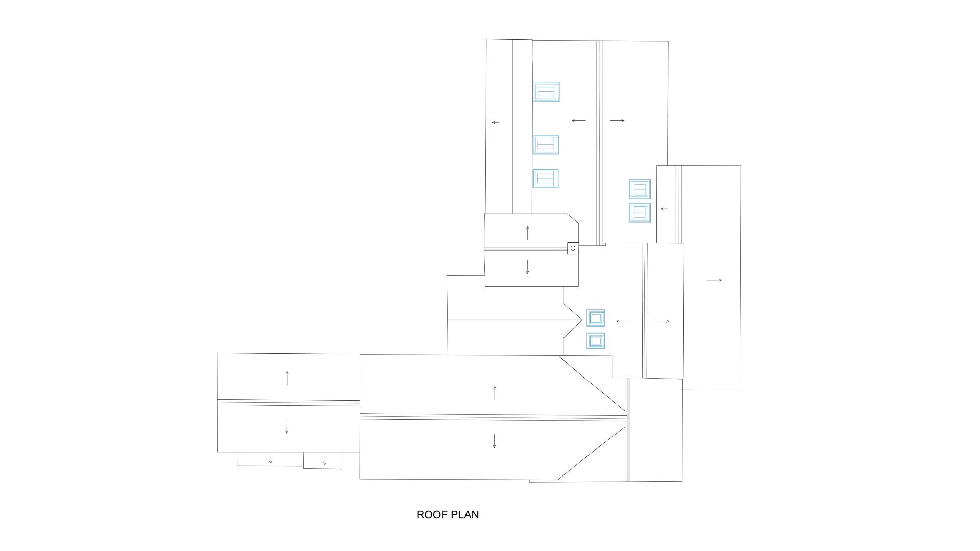
3D BIM Model LOD3 and LOD4, Measured Building Plans, Topographical Plans

Project gallery

Each veterinary practice was unique in its setting and requirements, from busy urban clinics to larger suburban practices, reflecting the diversity of the veterinary sector nationwide.

Our integrated surveying service was appointed to deliver a programme of tailored surveys, from topographical and utility mapping to detailed 2D measured building surveys and comprehensive 3D BIM models.

Surveying multiple sites of differing scope demanded careful planning and coordination. Our team worked closely with the client to schedule surveys efficiently, ensuring minimal disruption to the practices’ day-to-day operations.

This series of projects are a great example of how our integrated surveying service can be scaled across multiple sites. By combining a full range of survey types under one coordinated programme, we tailor our approach to meet client’s specific needs, ensuring consistency, efficiency, and accuracy across every location.

These Veterinary Practices are part of a growing portfolio of commercial projects that demonstrate Surveybase’s expertise in delivering accurate, high-quality surveys for complex buildings.

We combine almost 30 years of business with the latest surveying technology to deliver accurate, efficient, and professional results across the UK. Whether you’re planning a residential development or a large-scale commercial project, our expert team is here to help. To get started, visit our Quote Portal for a fast, tailored quote, or email: quote@surveybase.co.uk.

Related services

Unlock the benefits of integrated surveying services with Surveybase. Our comprehensive solutions combine a range of services to deliver efficient, accurate, and cost-effective results, supporting every phase of your project with precision and reliability.

Similar projects

Each project highlights our dedication to accuracy, innovation, and delivering integrated surveying services. Discover how we’ve helped clients achieve successful outcomes with precise, high-quality data.

Wentworth Golf Club, Surrey

Queen’s Square, Croydon

Raystede Centre for Animal Welfare, Eastbourne