Multi-Site Library Survey Programme

Overview

Summary

A coordinated multi-site surveying programme delivered across a portfolio of public libraries throughout the UK. The project focused on producing accurate, consistent floor plans for planning and informed decision-making.

Details

Title
Service
3D Revit BIM Modelling, Drone & Aerial Inspections
Method
Drone, Laser Scanner
Deliverables
3D Revit Model

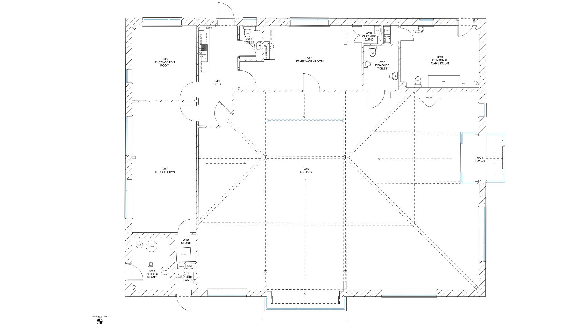
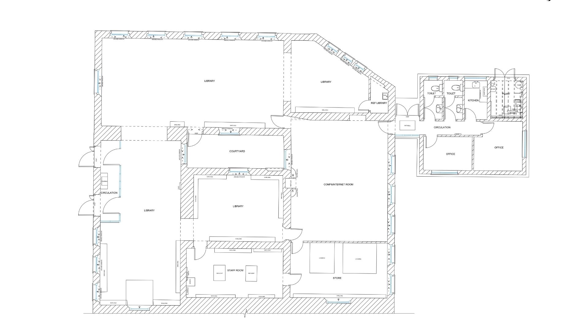
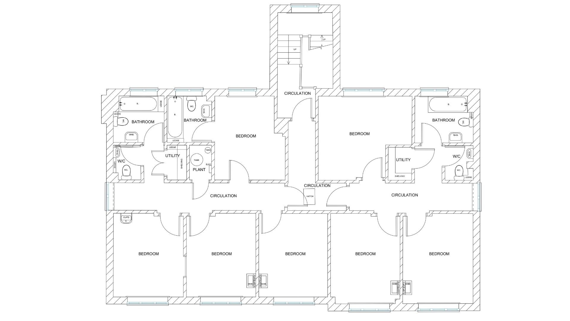
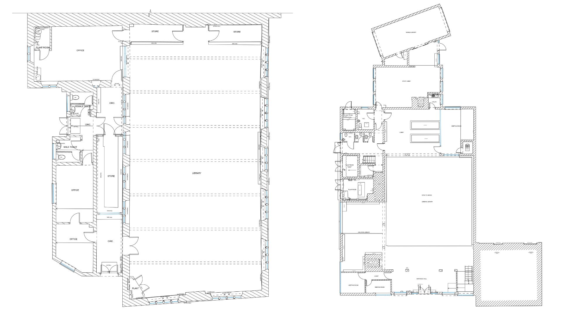
Project gallery

Delivering consistency at scale, this multi-site programme brought together a portfolio of public libraries across the UK under a single, coordinated surveying approach.

Spanning a diverse range of buildings, the project required careful planning, clear communication, and a flexible delivery model to meet the needs of each location.

Surveybase was appointed to deliver a measured building survey programme across multiple library sites throughout the UK. The works focused on producing floor plans for each building, providing the client with reliable spatial data to support planning.

Working across numerous locations presents logistical and coordination challenges. However, with extensive experience delivering multi-site programmes of this scale, Surveybase understands how to manage these complexities effectively. A structured delivery approach was implemented, combining regional survey teams with advanced surveying technology.

By operating across sites simultaneously, the programme benefitted from streamlined workflows, uniform outputs, and improved efficiency for stakeholders managing the wider portfolio.

This project underscores Surveybase’s commitment to delivering high-quality, cutting-edge surveying services. By providing our surveying services, we ensure clients receive a complete, coordinated and accurate dataset. This approach streamlines the design and planning process, reduces risk, and supports more efficient project delivery.

As part of a growing national portfolio, this programme reflects Surveybase’s expertise in delivering precise surveys across complex and varied building types.

We combine almost 30 years of business with the latest surveying technology to deliver accurate, efficient, and professional results across the UK. Whether you’re planning a residential development or a large-scale commercial project, our expert team is here to help. To get started, visit our Quote Portal for a fast, tailored quote, or email: quote@surveybase.co.uk.

Related services

Unlock the benefits of integrated surveying services with Surveybase. Our comprehensive solutions combine a range of services to deliver efficient, accurate, and cost-effective results, supporting every phase of your project with precision and reliability.

Similar projects

Each project highlights our dedication to accuracy, innovation, and delivering integrated surveying services. Discover how we’ve helped clients achieve successful outcomes with precise, high-quality data.

Multi-Site Surveys for Veterinary Practices

Multi-Site Survey Programme for Homebase