Health & Leisure Centre, Northampton

Overview

Summary

This leisure complex has been expanded and modernised over several decades to meet growing local demand.

Details

Title
Service
Measured Building Surveys, Topographical Survey, Underground Utility Surveys
Method
GPR, Laser Scanner, Total Station
Deliverables
2D Topographical Plan, Measured Building Plans, Utility Plans

Project gallery

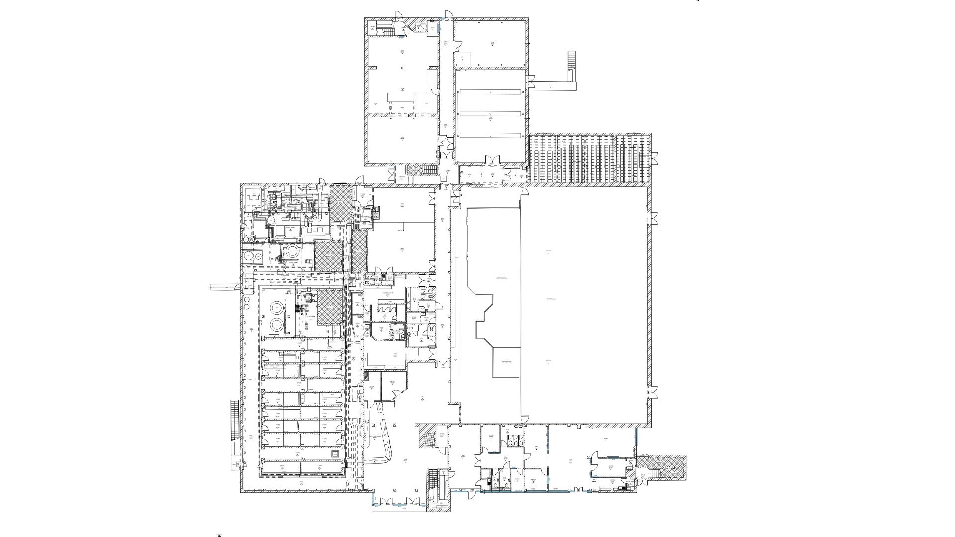
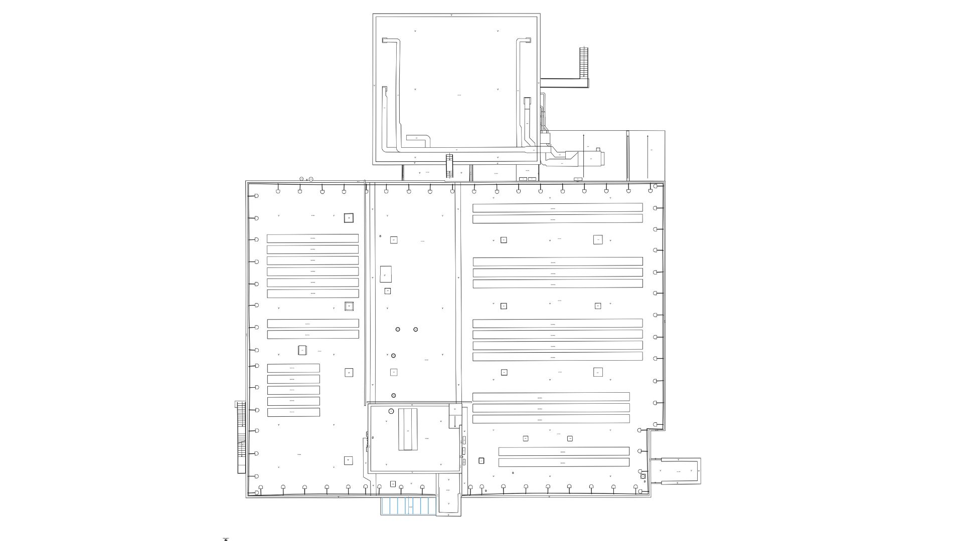
The site includes a two-storey gym, a main swimming pool, a large sports hall, and multi-purpose studio spaces, operating as a key recreational hub for the surrounding area,

Surveybase were appointed to deliver a comprehensive survey for this leisure complex. The project included a topographical, utility, and measured building survey, producing a topographical and utility plan, as well as floor, roof, and elevation plans.

Surveying this site came with a unique set of challenges, largely due to the presence of customers. To overcome this, Surveybase utilised advanced surveying technology and meticulous planning to ensure accurate data collection in a timely manner.

This project underscores Surveybase’s commitment to delivering high-quality, cutting-edge surveying services. By providing our surveying services, we ensure clients receive a complete, coordinated and accurate dataset. This approach streamlines the design and planning process, reduces risk, and supports more efficient project delivery.

This leisure complex joins prestigious sites within our portfolio, and each project reflects Surveybase’s expertise in delivering precise surveys for complex buildings.

We combine almost 30 years of business with the latest surveying technology to deliver accurate, efficient, and professional results across the UK. Whether you’re planning a residential development or a large-scale commercial project, our expert team is here to help. To get started, visit our Quote Portal for a fast, tailored quote, or email: quote@surveybase.co.uk.

Related services

Unlock the benefits of integrated surveying services with Surveybase. Our comprehensive solutions combine a range of services to deliver efficient, accurate, and cost-effective results, supporting every phase of your project with precision and reliability.

Similar projects

Each project highlights our dedication to accuracy, innovation, and delivering integrated surveying services. Discover how we’ve helped clients achieve successful outcomes with precise, high-quality data.

Leys Pools & Leisure Centre

Leisure Centres, Oxford