Leisure Centres, Oxford

Overview

Summary

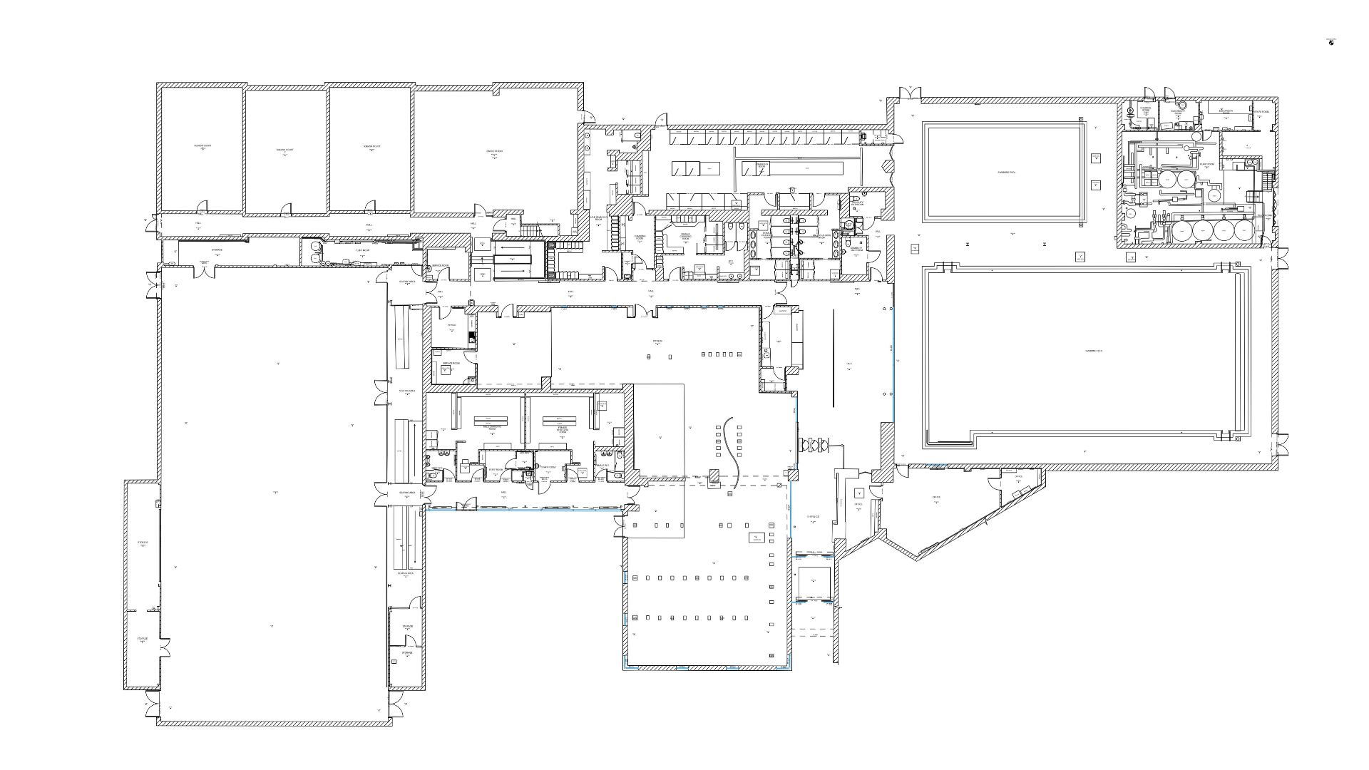
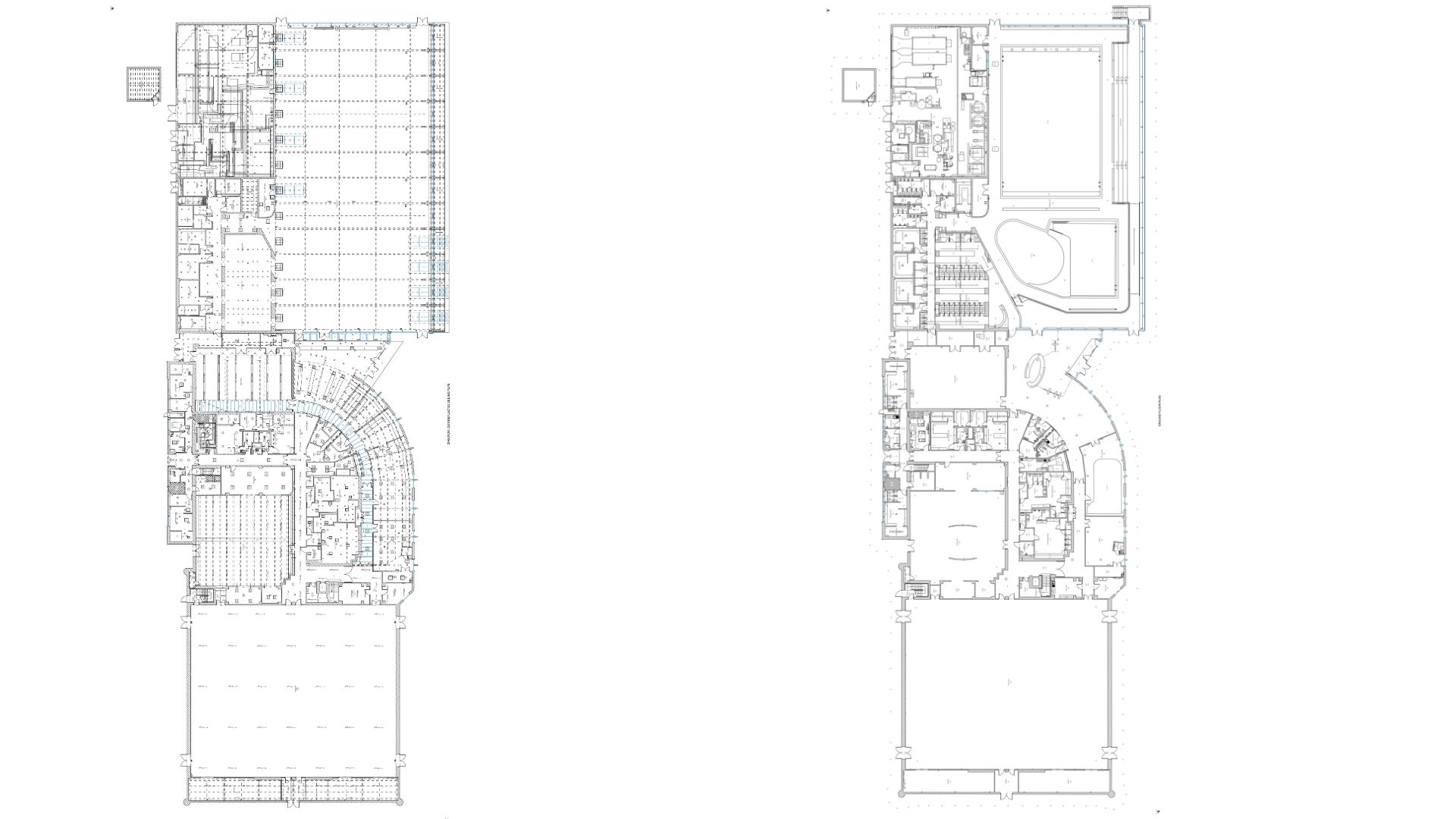
In our ongoing framework agreement with Oxford City Council where we serve as their selected survey supplier, we recently conducted 2D detailed Measured Building surveys for 5 leisure centres in the Oxford area.

These centres play a crucial role as foundational pillars within the local community, providing a diverse range of sporting, health, and event facilities across Oxfordshire. Among them are the Oxford Ice Rink, Ferry Leisure Centre, Blackbird Leys Leisure Centre, Barton Leisure Centre, and Hinksey Pool.

The historic Oxford Ice Rink stands out as one of the few remaining operational rinks in the UK. Serving as a year-round hub for various ice-related activities, it caters to enthusiasts of ice skating, figure skating, and serves as the home arena for the Oxford City Stars ice hockey team.

Details

Title
Leisure Centres, Oxford
Service
Measured Building Surveys
Method
3D Laser Scan
Deliverables
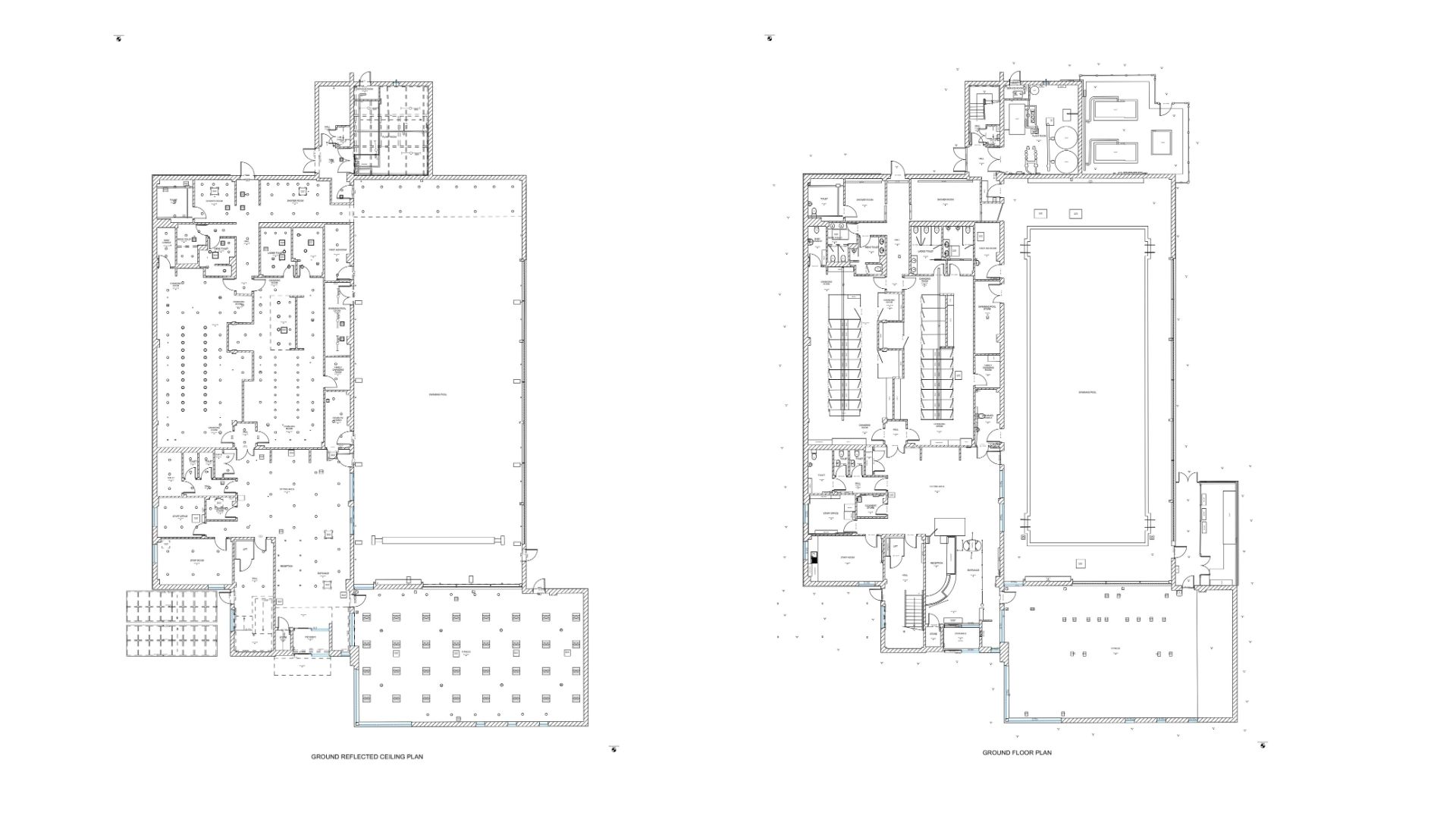
2D Floor Plans

Project gallery

The remaining 4 leisure centres, Ferry Leisure Centre, Blackbird Leys Leisure Centre, Barton Leisure Centre, and Hinksey Pool not only offer free swimming sessions but also provide up to six months of free leisure centre membership to individuals experiencing homelessness.

The Oxford City Council is set to implement an initiative that involves the installation of new gym equipment, additional sports studios, and the transformation of a sports hall into a soft play area for the community in these leisure centres.

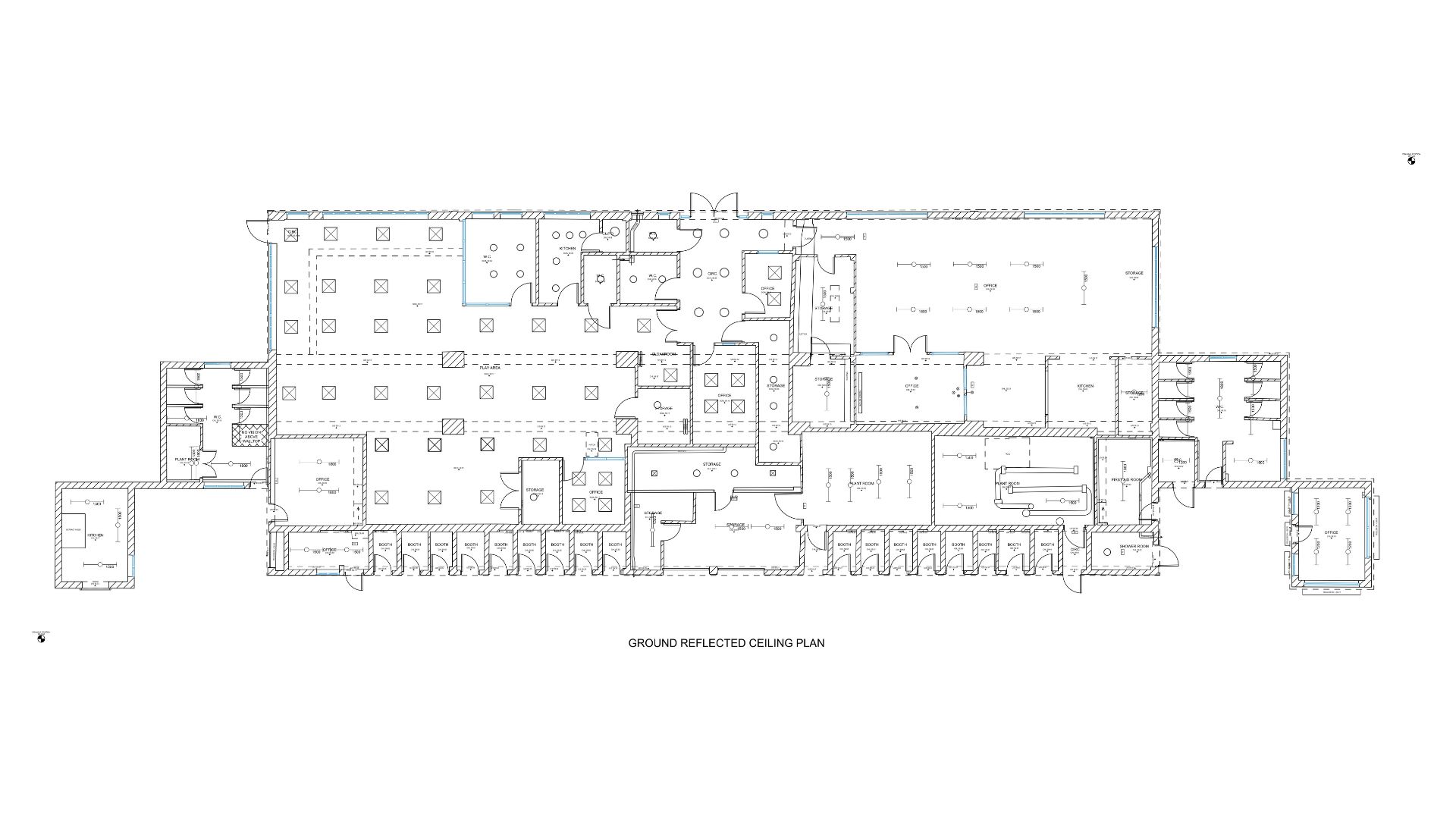
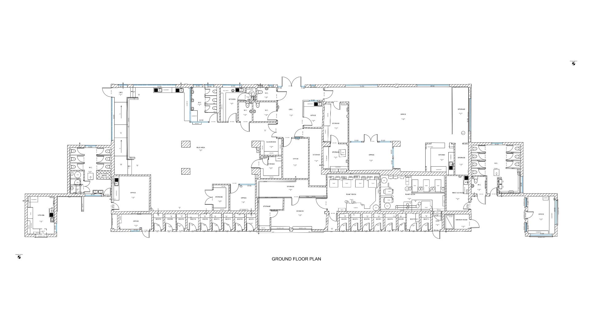
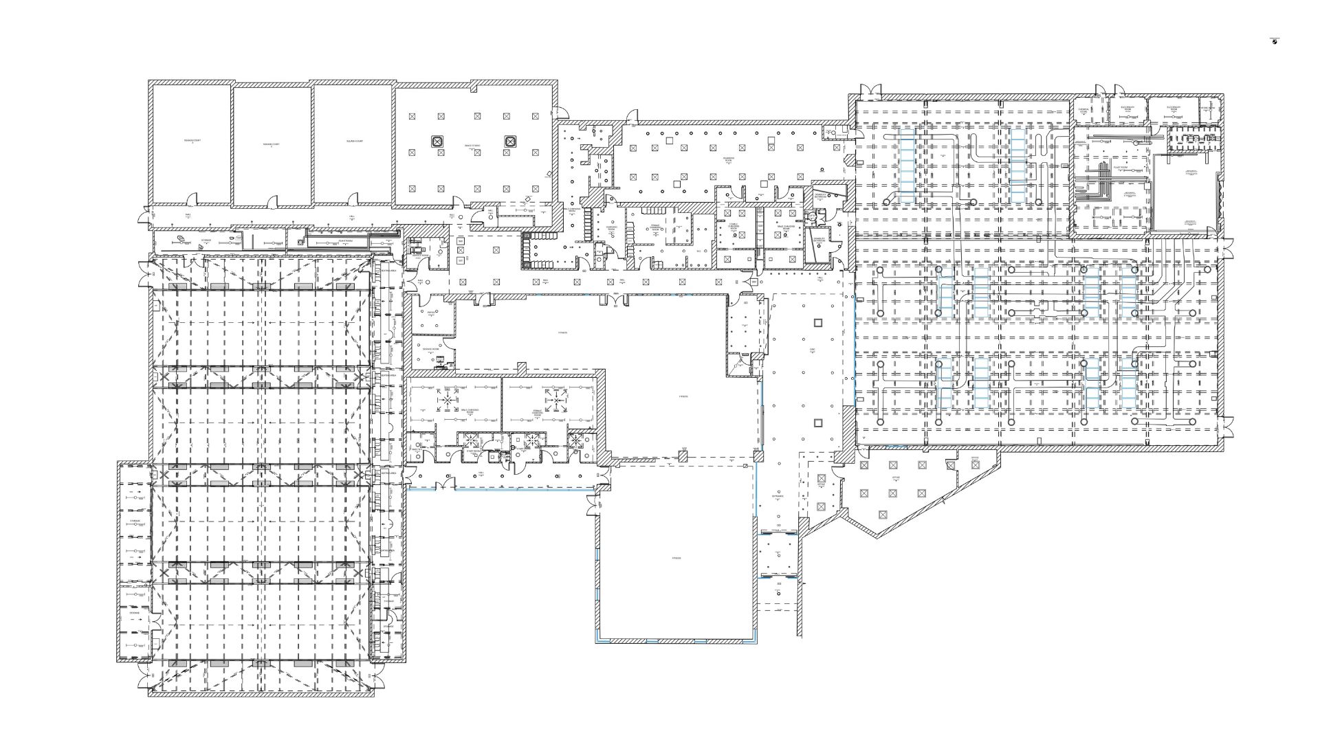
Surveybase undertook a detailed Measured Building Survey of each leisure centre. Utilising Leica 3D laser scanners referenced to OS datum coordinates, the resulting pointcloud was used to deliver accurate floor plans along with separate site visits to complete MEP schedule surveys.

Jordan King, Director, notes “Leisure centres are not just buildings; they are the heartbeat of the local communities. We are honoured to have been entrusted with completing the Measured Surveys. We look forward to witnessing the transformation of these spaces, as they are given new life to continue serving as vibrant hubs for generations to come”.

These leisure centres are another example of our unique capability to deliver surveys on a large scale. It stands proud within a portfolio of similar work including Community Centres, London.

If you would like to find out more about our Digital Surveying Services and 3D BIM Models, please visit the Surveybase website or call;

  • London – 0203 906 6892
  • Birmingham – 01212 723178
  • Bristol – 01225 314 370
  • Reading – 01182 072508
  • Croydon – 02033 764379
  • Cambridge – 01223 632613

To obtain a quotation please email your survey brief to our dedicated tender service; quote@surveybase.co.uk or use the Online Quotation Portal.

Surveybase Limited are a precision digital surveying practice working on private and public sector developments across the UK. For more information please visit the Sectors and Portfolio pages.

Related services

Unlock the benefits of integrated surveying services with Surveybase. Our comprehensive solutions combine a range of services to deliver efficient, accurate, and cost-effective results, supporting every phase of your project with precision and reliability.

Similar projects

Each project highlights our dedication to accuracy, innovation, and delivering integrated surveying services. Discover how we’ve helped clients achieve successful outcomes with precise, high-quality data.

The Boardwalk at Brighton Marina, the UK’s Largest Marina

Office for National Statistics Headquarters, Newport

Leys Pools & Leisure Centre