The Glassworks, Guildford

Overview

Summary

Constructed in the 1980s, the building is now set for redevelopment into a modern, energy-efficient office environment

Details

Title
Service
Measured Building Surveys, Topographical Survey
Method
Laser Scanner, Total Station
Deliverables
2D Topographical Plan, Measured Building Plans

Project gallery

The building has recently undergone a major refurbishment, including a new glass atrium roof, upgraded mechanical and plumbing systems, refreshed interiors, and improved landscaping to create a brighter, more modern environment.

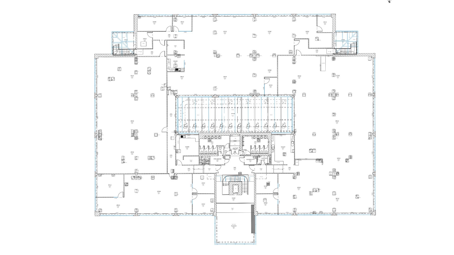
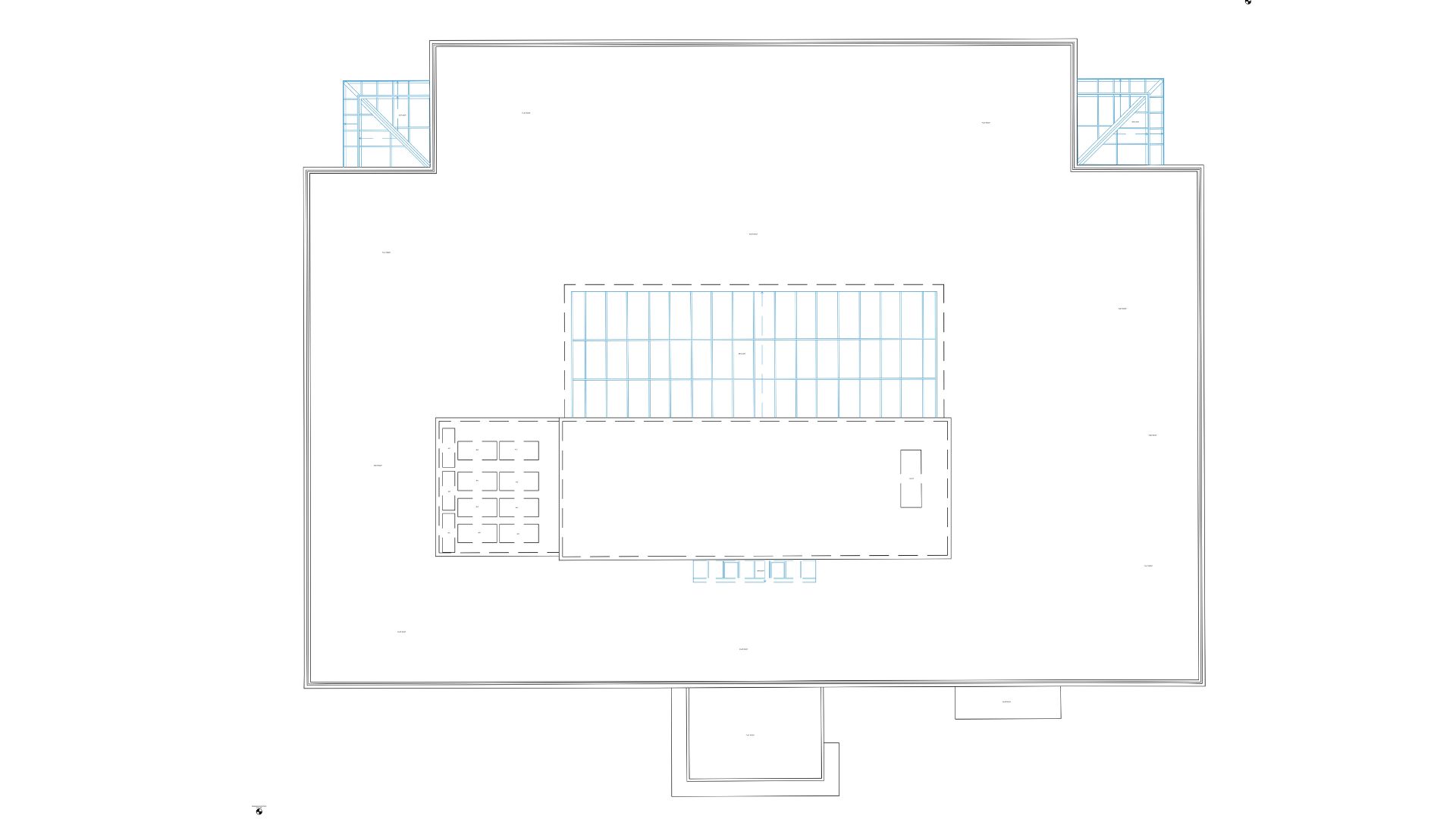
Surveybase was appointed to deliver a topographical and measured building survey. This provided the client with an accurate 2D plans including elevations, sections, floor plans, and a roof plan, along with a site plan.

Surveying The office presented unique challenges, but to overcome these, Surveybase employed advanced surveying technology and careful planning to capture precise data while minimising disruption.

This project underscores Surveybase’s commitment to delivering high-quality, cutting-edge surveying services. By providing our surveying services, we ensure clients receive a complete, coordinated and accurate dataset. This approach streamlines the design and planning process, reduces risk, and supports more efficient project delivery.

This office building joins prestigious sites within our portfolio, and each project reflects Surveybase’s expertise in delivering precise surveys for complex buildings.

We combine almost 30 years of business with the latest surveying technology to deliver accurate, efficient, and professional results across the UK. Whether you’re planning a residential development or a large-scale commercial project, our expert team is here to help. To get started, visit our Quote Portal for a fast, tailored quote, or email: quote@surveybase.co.uk.

Related services

Unlock the benefits of integrated surveying services with Surveybase. Our comprehensive solutions combine a range of services to deliver efficient, accurate, and cost-effective results, supporting every phase of your project with precision and reliability.

Similar projects

Each project highlights our dedication to accuracy, innovation, and delivering integrated surveying services. Discover how we’ve helped clients achieve successful outcomes with precise, high-quality data.

Office for National Statistics Headquarters, Newport

Portwall Place, Bristol