The Church of St. Michael, Bicester

Overview

Summary

The church’s origins date back to the Saxon period, with evidence of a place of worship on the site recorded in the 11th century. Much of the current structure was built in the late 11th or early 12th century and remains a fine example of early medieval architecture and craftsmanship.

Details

Title
Service
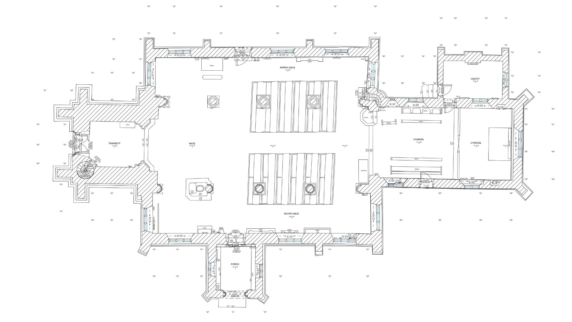
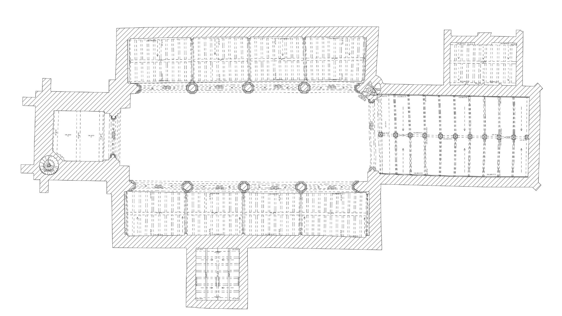
Measured Building Surveys, Rectified Imagery, Topographical Survey
Method
Drone, Laser Scanner, Total Station
Deliverables
2D Topographical Plan, Measured Building Plans, Rectified Imagery

Project gallery

In the 14th century, the chancel, tower, and vestry were rebuilt, reflecting the changing architectural styles of the time and adding new layers to the building’s long history.

Surveybase was appointed to deliver a topographical and measured building survey, along with a Rectified Imagery survey. This provided the client with an accurate 2D plans including elevations, sections, floor plans, and a roof plan, along with a site plan and Orthorectified images.

Surveying The church presented unique challenges, but to overcome these, Surveybase employed advanced surveying technology and careful planning to capture precise data while minimising disruption.

This project underscores Surveybase’s commitment to delivering high-quality, cutting-edge surveying services. By providing our surveying services, we ensure clients receive a complete, coordinated and accurate dataset. This approach streamlines the design and planning process, reduces risk, and supports more efficient project delivery.

This church joins prestigious sites within our portfolio, and each project reflects Surveybase’s expertise in delivering precise surveys for complex buildings.

We combine almost 30 years of business with the latest surveying technology to deliver accurate, efficient, and professional results across the UK. Whether you’re planning a residential development or a large-scale commercial project, our expert team is here to help. To get started, visit our Quote Portal for a fast, tailored quote, or email: quote@surveybase.co.uk.

Related services

Unlock the benefits of integrated surveying services with Surveybase. Our comprehensive solutions combine a range of services to deliver efficient, accurate, and cost-effective results, supporting every phase of your project with precision and reliability.

Similar projects

Each project highlights our dedication to accuracy, innovation, and delivering integrated surveying services. Discover how we’ve helped clients achieve successful outcomes with precise, high-quality data.

St. Aelred’s Church, Norwich

St Mary the Virgin Church, Reading